![]()
Program/ Guest dwelling
Concept/ Passive solar + views
Materials/ Wood, metal, glass
Location/ Breckenridge CO
Completion/ 2009
![]()
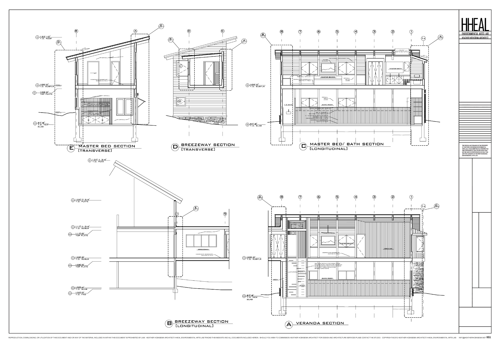
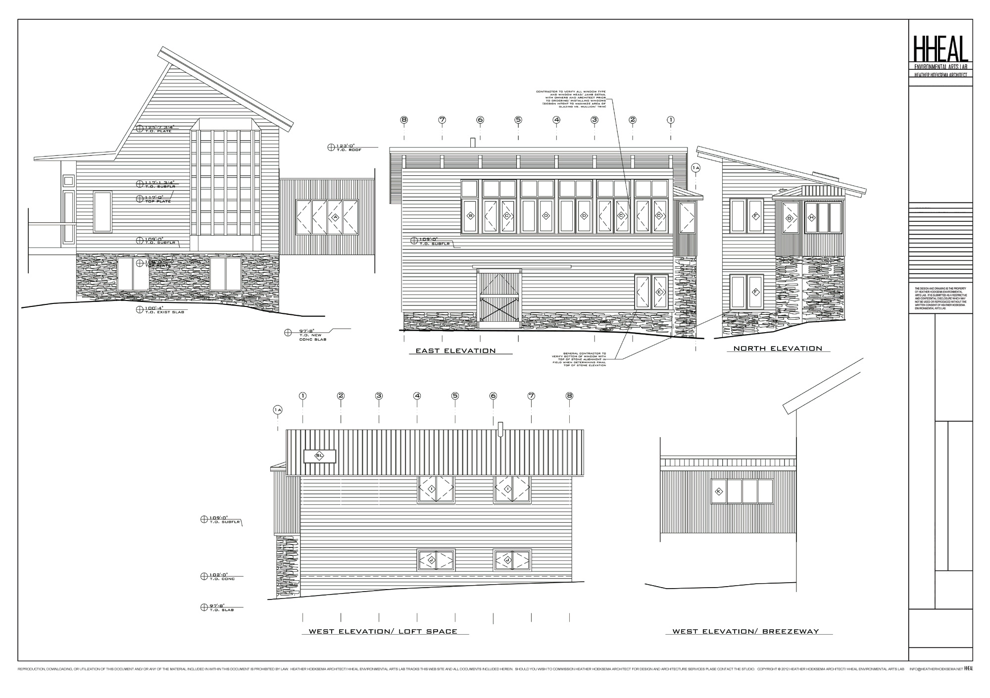
This project was an addition to an old eccentric ski challet. Repetition of the existing structurual modules provided a textural language between the old and new. We fit maximum programming into an affordable surround with ample privacy within the site. Connection with nature, at both the macro and micro scale, was an important part of the articulation.
• Passive solar energy
• Natural heating and cooling
• Expansive viewscape
<<< click to enlarge
![]()









